Minimale Nebenkosten auf 3 Etagen mit traumhaftem Weitblick

Zwei Eckhäuser und ein Mittelhaus inklusive Grundstück.

  • Kategorie: Reihenhaus
  • Bundesland: Baden-Württemberg
  • Standort: 79804 Dogern
  • Grundstückgrößen: von ca. 149 m² bis 276 m²
  • Wohn- und Nutzfläche: ca. 131 m² bis 137 m²
  • Förderfähig durch KFN (Klimafreundlicher Neubau)
  • Besonderheiten: Überdachter Eingang, Dachterrasse und Terrasse im Erdgeschoss
  • Heizung: Wärmepumpe mit Außenaufstellung inklusive Photovoltaik-Anlage
  • Verkaufspreis: ab 490.000 €

Das Reihenhaus wird im Neubaugebiet „Hatteläcker II“ in Dogern errichtet. Die Gemeinde Dogern liegt an den südlichen Ausläufern des Schwarzwalds im schönen und sonnigen Rheintal. In den vergangenen Jahrzehnten hat sich die ursprünglich ländlich geprägte Gemeinde zu einem attraktiven Wohnstandort der nahen Kreisstadt Waldshut-Tiengen entwickelt. Die Nähe zur B 34 und der angrenzende Schienenverkehr zwischen Basel und Singen sorgen für eine hervorragende Infrastruktur. Diese wird durch ein umfangreiches Betreuungsangebot für Jung und Alt sowie diverse Einkaufsmöglichkeiten perfekt abgerundet.

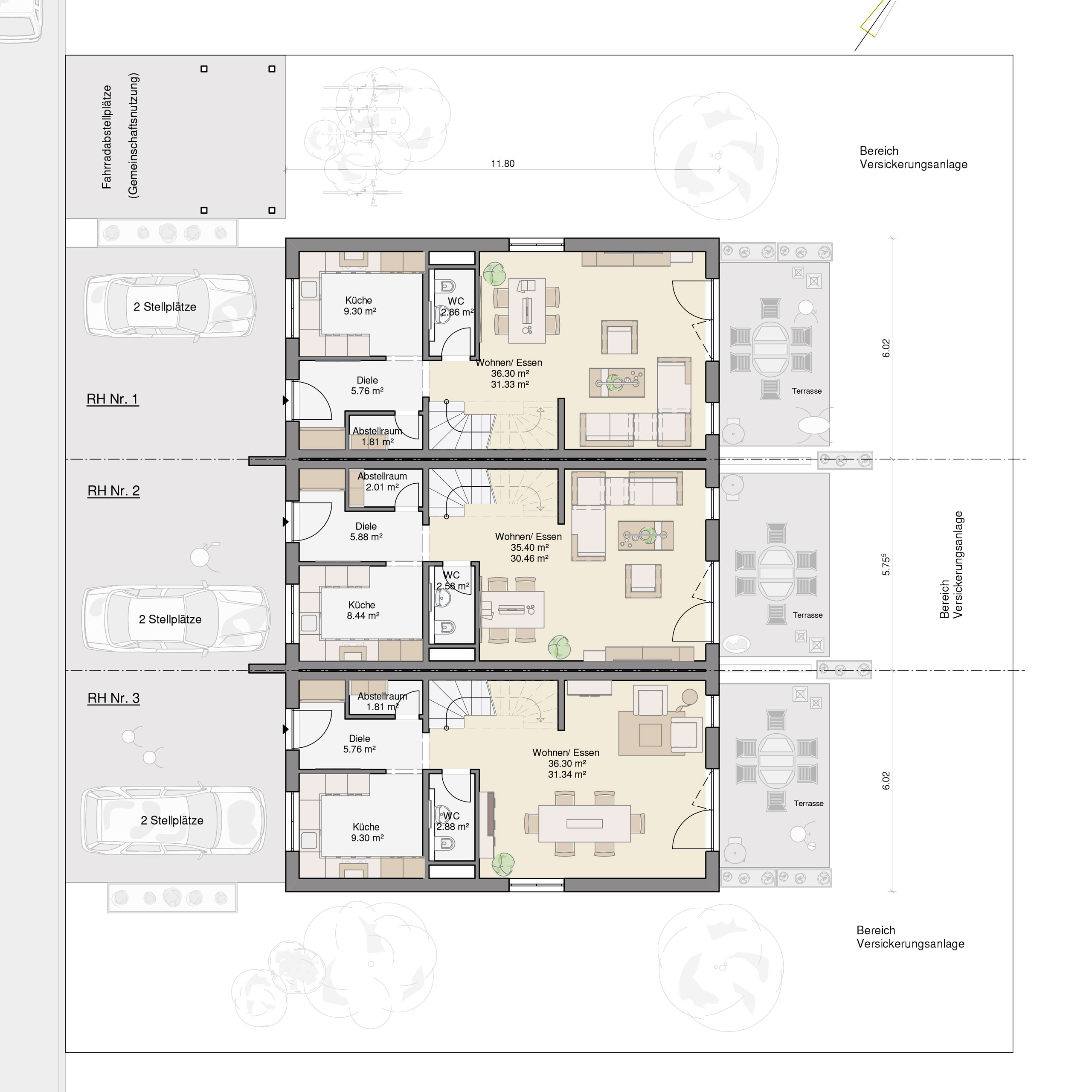
Erdgeschoss

Treten Sie ein in Ihr neues Zuhause! Sowohl Sie als auch Ihre Gäste werden vom einladenden Eingangsbereich mit Garderobe willkommen geheißen. Die separate Küche schafft Raum und Ruhe für entspanntes Kochen. Direkt gegenüber befindet sich ein praktischer Abstellraum, in dem Sie Platz für Vorräte und Haushaltsgeräte finden, sodass die Küche immer aufgeräumt und ordentlich bleibt. Für Ihren Besuch steht ein eigenes Gäste-WC zur Verfügung. Zusammen mit Ihrer Familie und Freunden werden Sie es genießen, viele Stunden im Herzstück des Hauses zu verbringen: Der großzügige und offen gehaltene Wohn-/ Essbereich ist durch bodentiefe Fensterelemente von Tageslicht durchflutet und bietet direkten Zugang zur Terrasse.

Obergeschoss

Zwei großzügige Räume schaffen ausreichend Platz für Ihre jüngsten Familienmitglieder oder können alternativ als Hobbyraum oder Büro genutzt werden. Im Badezimmer bleiben mit Dusche, Badewanne, WC und einem optionalen zweiten Waschtisch keine Wünsche offen.

Dachgeschoss

Eine Etage darüber erwartet Sie Ihre persönliche Ruheoase. Das Schlafzimmer bietet einen großzügigen Raum, den Sie nach Ihrem ganz persönlichen Stil gestalten können. In der abgetrennten, begehbaren Ankleide lassen sich all Ihre Lieblingskleidungsstücke ordentlich und stilvoll verstauen. Ein besonderes Highlight ist die Dachterrasse. Ob Sonnenuntergang oder Sternenhimmel - hier können Sie zur Ruhe kommen und die Seele baumeln lassen.

Haustechnik

Das Haus wird nach den Vorgaben des aktuell gültigen GEG errichtet. Eine dem neusten Stand der Technik entsprechende Luft-Wasser-Wärmepumpe mit Außenaggregat versorgt das Haus mit Energie für Heizung und Warmwasser und wird optional durch eine dezentrale Lüftungsanlage unterstützt.

Bitte beachten Sie: Aktuelle Verfügbarkeiten können sich schnell ändern. Fragen Sie einfach telefonisch (+49 7741 96681-10) nach.

Erhalten Sie exklusive Einblicke in unserem Exposé. Jetzt anschauen und einen Beratungstermin vereinbaren!

Projektbau Mutter AG
Schlüchttalstraße 31 A
79761 Waldshut-Tiengen/Gurtweil

Telefon: +49 7741 966 81-10
E-Mail: info@projektbau-mutter.de

Exposé herunterladen »

Zum Kontaktformular »

Abbildung zeigen Modelldarstellungen sowie Sonderausstattungen und dienen nur der Visualisierung. Alle Angaben ohne Gewähr. Änderungen und Irrtum vorbehalten. Eine Prospekthaftung wird ausgeschlossen, etwaige Regressansprüche sind somit ebenso ausgeschlossen.